【エンブルタウン御殿場高根】 御殿場市初の「優良田園住宅」富士山の四季を感じられるロケーション♪
建築条件なし!
1区画300㎡~のゆとりある区画をご用意しております。
POINT
★★★御殿場市初!優良田園住宅販売中★★★
オススメポイント♪
●富士山の麓で自然たっぷりな暮らしができます
都会の喧騒から離れ、四季折々の変化を感じながら悠々とした暮らしを実現します。
春には桜、秋には紅葉が、富士山と調和しより一層美しい光景を作り出します。
●自由で快適な暮らし
全区画300㎡以上で、隣家に気を遣うことなく自由でゆとりのある生活を実現できる環境になっています。
東名高速道路・新東名高速道路、さらには山梨へ通じる御殿場バイパスなど関東・静岡中部へのアクセスも優れています。また、箱根方面へのアクセスも快適です。
●まちなみルールで統一感のある街並みを
建物外観や外構について、「まちなみルール」を策定しています。分譲時のまちなみの統一感はもちろん、価値が持続するまちなみ作りを目指します。
●御殿場プレミアム・アウトレットが生活圏に
御殿場市内にあるアウトレットまで約7㎞(車約15分)。その他、静岡県東部エリアには、富士スピードウェイ(小山町)やゴルフ場多数。
趣味を近場で楽しめる環境で、日常により彩りが生まれます。
そもそも、優良田園住宅って何??
国土交通省によると、「優良田園住宅とは、農山村地域、都市の近郊等に良好な自然的環境を形成している地域に所在する一戸建てで、敷地面積が300㎡以上、建ぺい率30%以下、容積率50%以下、3階建て以下の住宅」とされています。法律によって認められた場所のみ、建築が可能になる住宅です。
⇒エンブルタウン御殿場高根は優良田園住宅を建築できる分譲地として認定を受けています。
多様なライフスタイルに合わせた、自然豊かな地域での住宅の建築が可能です♪
物件情報
所在地
御殿場市塚原字柏木塚1935番1(代表地番表記)
交通
新東名「新御殿場」IC 車5分
JR御殿場駅 車15分
御殿場市役所 車15分
東名「御殿場」IC 車15分
学区
高根小学校
高根中学校
土地権利
所有権
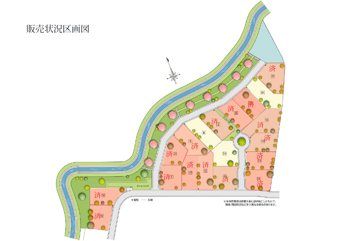
総区画数
19区画
販売区画数
7区画
価格
14,580,000円~17,530,000円
面積
306.21㎡~416.07㎡
地目
宅地
用途地域
無指定(市街化調整区域)
建ぺい率・容積率
建ぺい率:30% 容積率:50%
地勢
平坦
引渡し日
即引渡可能
情報更新日
2025年10月16日(木)
次回情報更新予定日
2025年10月29日(水)
★★★御殿場市初!優良田園住宅販売中★★★
オススメポイント♪
●富士山の麓で自然たっぷりな暮らしができます
都会の喧騒から離れ、四季折々の変化を感じながら悠々とした暮らしを実現します。
春には桜、秋には紅葉が、富士山と調和しより一層美しい光景を作り出します。
●自由で快適な暮らし
全区画300㎡以上で、隣家に気を遣うことなく自由でゆとりのある生活を実現できる環境になっています。
東名高速道路・新東名高速道路、さらには山梨へ通じる御殿場バイパスなど関東・静岡中部へのアクセスも優れています。また、箱根方面へのアクセスも快適です。
●まちなみルールで統一感のある街並みを
建物外観や外構について、「まちなみルール」を策定しています。分譲時のまちなみの統一感はもちろん、価値が持続するまちなみ作りを目指します。
●御殿場プレミアム・アウトレットが生活圏に
御殿場市内にあるアウトレットまで約7㎞(車約15分)。その他、静岡県東部エリアには、富士スピードウェイ(小山町)やゴルフ場多数。
趣味を近場で楽しめる環境で、日常により彩りが生まれます。
そもそも、優良田園住宅って何??
国土交通省によると、「優良田園住宅とは、農山村地域、都市の近郊等に良好な自然的環境を形成している地域に所在する一戸建てで、敷地面積が300㎡以上、建ぺい率30%以下、容積率50%以下、3階建て以下の住宅」とされています。法律によって認められた場所のみ、建築が可能になる住宅です。
⇒エンブルタウン御殿場高根は優良田園住宅を建築できる分譲地として認定を受けています。
多様なライフスタイルに合わせた、自然豊かな地域での住宅の建築が可能です♪
| 所在地 | 御殿場市塚原字柏木塚1935番1(代表地番表記) |
|---|---|
| 交通 | 新東名「新御殿場」IC 車5分
JR御殿場駅 車15分 御殿場市役所 車15分 東名「御殿場」IC 車15分 |
| 学区 | 高根小学校
高根中学校 |
| 土地権利 | 所有権 |
| 総区画数 | 19区画 |
| 販売区画数 | 7区画 |
| 価格 | 14,580,000円~17,530,000円 |
| 面積 | 306.21㎡~416.07㎡ |
| 地目 | 宅地 |
| 用途地域 | 無指定(市街化調整区域) |
| 建ぺい率・容積率 | 建ぺい率:30% 容積率:50% |
| 地勢 | 平坦 |
| 引渡し日 | 即引渡可能 |
| 情報更新日 | 2025年10月16日(木) |
| 次回情報更新予定日 | 2025年10月29日(水) |