お問い合わせ
各書類ダウンロード
エンブルタウンは、ヨシコンが贈る分譲地です。住みやすさへのこだわりの詰まった好立地のコミュニティです。
販売中の分譲地
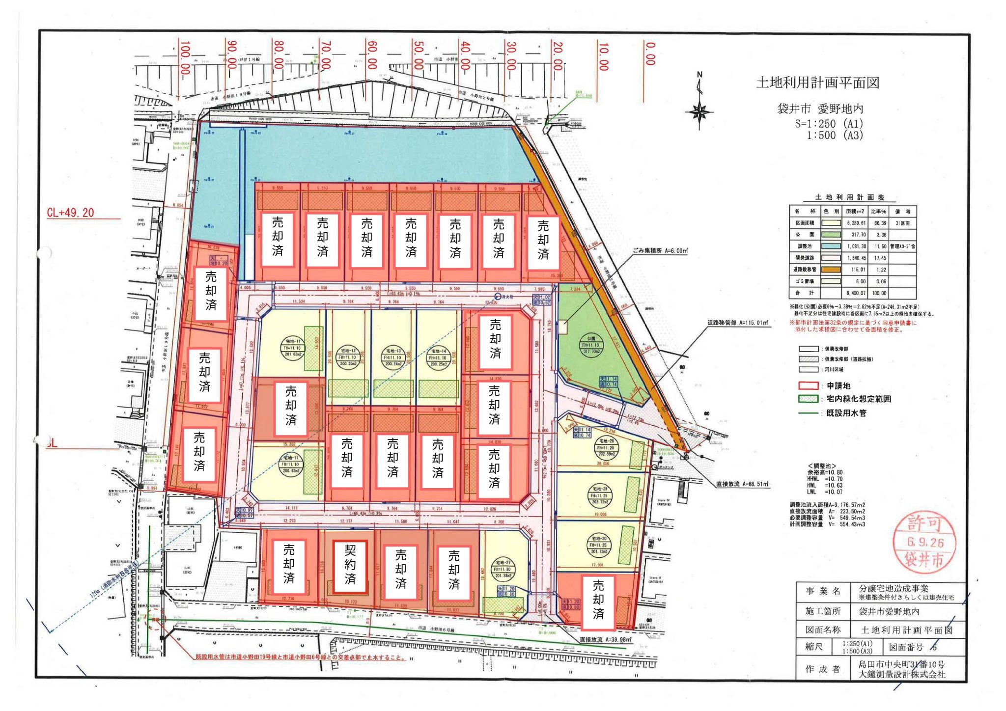
袋井市に誕生!!薬局、コンビニ、スーパーが車5分圏内!好立地が魅力です♪
清水区に誕生!!薬局、コンビニ、スーパーが徒歩5分圏内!好立地が魅力です♪
薬局、コンビニ、スーパーが生活徒歩圏内!好立地が魅力です♪
袋井市に誕生!!ドラッグストア(コスモス)が徒歩5分圏内!好立地が魅力です♪
エンブルタウン富士宮大中里 富士山を望む環境に、美しいまちなみと暮らしやすい環境をつくる。
富士山の四季を感じられるロケーション♪ 建築条件なし! 1区画300㎡~のゆとりある区画をご用意しております。
どんな土地・建物でも、まずはお気軽にお問合せください♪
建売住宅の取り扱いもございます。ヨシコンの戸建住宅「エンブルホーム」
戸建住宅・分譲地についてお気軽にご連絡ください。